Cypergras 74 ‘s-Gravenhage
- Postcode: 2498 AB
- Woonoppervlakte: 134 m2
- Perceeloppervlakte: 307 m2
- Inhoud: 469 m3
- Bouwjaar: 2007
Omschrijving
Op een prachtige locatie aan een rustig gelegen straat staat deze karakteristieke gasloze twee-onder-een-kap woning met garage en grote tuin op het ZO grenzend aan het water. Deze veranda woning combineert conform, stijl en duurzaam wonen in een kindvriendelijke woonomgeving waar rust en veiligheid vanzelfsprekendheid is.
SAMENGEVAT
– Karakteristieke woning met veel ruimte
– Twee-onder-een-kap met garage
– Grenzend aan water
– Ruim perceel met dubbele parkeerplaats op eigen grond
– Duurzaam gebouwd met gebruik van hoogwaardige materialen
– Gasloos en verwarmd middels stadverwarming
– Energielabel A
– Ruime voor-, zij- en achtertuin tuin met achtertuin op het zuidoosten
– Aan autoluwe straat
– Gunstig gelegen nabij uitvalswegen richting de grote steden zoals de A4, A12 en A13
– Snelle oplevering is mogelijk
De INDELING van de woning is als volgt
Brede bestrate oprit met plaats voor 2 auto’s met achter de parkeerplaatsen een afsluitbare toegangspoort naar tuin en garage. De voortuin is aangelegd met stapstenen, vaste boompjes en een ijzeren sierhekje. De woning is aan de voorzijde via de sfeervolle houten veranda te bereiken.
Begane grond:
Ruime lichte hal met toegang tot de meterkast, garderobe opstelling, een vaste trap naar de 1e verdieping, toegangsdeur naar de woonkamer en de toilet ruimte. De toiletruimte is netjes en voorzien van een toilet, antraciet vloertegels i.c.m. witte wandtegels.
De woonkamer is licht en heeft een praktische indeling met een zit- en een eetgedeelte. De algehele afwerking is netjes met gestuukte wandafwerking en een doorgelegde natuur hardhouten vloer (Sequoia).
De open keuken is in parallelle opstelling geplaatst met een gezellig eetbarretje aan de voorzijde dat uitzicht biedt over de straat. Het aanrechtblad is een grijskleurige composiet natuurstenen aanrechtblad en is ruim van formaat. De keuken biedt veel opbergruimte dankzij de vele kastjes en laden. De volgende (inbouw)apparatuur is aanwezig en is deels vernieuwd; een inductiekookplaat, een RVS-recirculatie afzuigkap, een magnetron, een heteluchtoven, een vaatwasser en een koelkast met vriesvak en vriezer.
Via de openslaande hardhouden terrasdeuren bereikt je de buitenruimte onder de houten veranda.
Tuin:
De woning beschikt over een voor-, zij- en achtertuin. De achtertuin is afsluitbaar middels een poort. De achtertuin is ruim, zonnig, ligt op het zuid oosten en beschikt over diverse terrassen i.c.m. beplanting en gazon waardoor er altijd ruimte is voor spelen, ontspanning of gezellig samenzijn. Achterin de tuin ligt op een lager gelegen gedeelte een houten vlonder die grenst aan het water. Op de vlonder achter de garage is een houten tuinoverkapping met een gezellig zitje en fraai uitzicht over het water. Deze dient wel te worden opgeknapt.
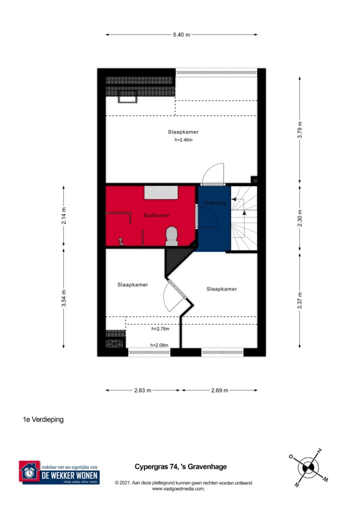
Eerste verdieping:
Ruime lichte overloop met vaste open trap en toegang tot twee slaapkamers met mogelijkheid tot 3 (!). De algehele afwerking op deze verdieping is netjes met gestuukte wandafwerking i.c.m. een doorgelegd lichtkleurige fineerpakket. De ouderslaapkamer is gevel breed en beschikt over een dakkapel en dakraam. Deze slaapkamer ligt aan de achterzijde van de woning en beschikt over een kledingkast. De tweede slaapkamer ligt aan de voorzijde en heeft eveneens een dakkapel. De badkamer is deels betegeld en voorzien van een douche met drain en glaswand, de 2e hangend toilet, een badkamermeubel met dubbele wastafel en bijpassende spiegel, een hangkast en een radiator. Omdat de overloop ruim van formaat is, mede door de geplaatste dakkapel, is er voldoende daglicht en ruimte om bijvoorbeeld een extra hobby-, werk-, of slaapkamer te realiseren.
Tweede verdieping:
Volwaardige tweede verdieping met hoge nok en dakkapel aan de voorzijde. Aan de zijgevel bevinden zich grote dubbele gevelramen. Een praktische vlieringruimte annex vide (sta hoogte) is geschikt voor speel- en/of bergruimte. Deze is middels een losse trap te bereiken. Naast deze enorme (berg)ruimte is er ook ruimte achter de knieschotten aan weerszijde van de woning. Verder bevindt zich op de 2e verdieping de wasmachine aansluiting en afzuigingunit voor badkamer en toiletruimte.
Garage:
De vrijstaande ondergeheide houten garage beschikt over elektra en heeft stalen kiep-/kantel deur. Verder is deze ruimte ook te bereiken via een tuindeur.
Omgeving:
De woning ligt in de geliefde wijk Brasserhout, precies op de grens van Den Haag en Delft. Op loopafstand bevinden zich o.a. basisscholen, kinderopvang, het hertenkamp, speel-/ sportaccommodaties en natuur- en recreatiegebied Delftse Hout, waar je heerlijk kunt wandelen, fietsen en ontspannen. Via dit natuurgebied bereikt je binnen tien minuten fietsen de historische binnenstad van Delft. Ook de dagelijkse voorzieningen zijn dichtbij zoals het winkelcentra in Ypenburg en Nootdorp. Dankzij de gunstige ligging zijn ook de uitvalswegen A4, A12 en A13 binnen enkele minuten bereikbaar.
AAN DE TEKST, FOTO’S EN PLATTEGRONDEN KUNNEN GEEN RECHTEN WORDEN ONTLEEND